| Desarrollos Inmobiliarios TEN, C.A. |
| Promotores y Asesores Inmobiliarios |
| Inicio | Somos | Servicios | Trayectoria | Contacto | Promos |
| Venta - Apartamentos - Los Chorros | |
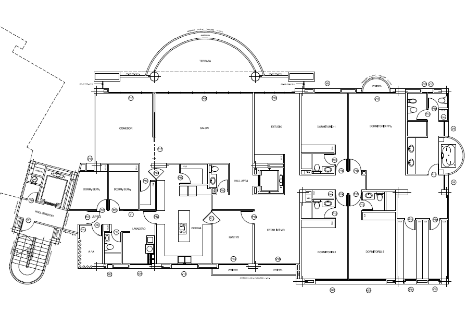
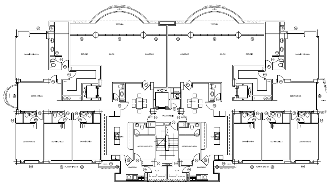
En el exclusivo conjunto "Paraíso Los Chorros", en calle privada, rodeado de jardines, zonas verdes y el Avila.Torre "D", Apto. No. 31, Area 367 m2.4 habitaciones con baño individual cada una.1 habitación de servicio. 1 cuarto de chofer. 1 maletero. 4 puestos de estacionamiento. Ref.Venta: $600.000,00. Torre "C", Apto. No. 42, Area 652 m2. 5 habitaciones con baño individual cada una.2 habitaciones de servicio. 1 cuarto de chofer. 1 maletero. 6 puestos de estacionamiento. Ref. Venta: $1.065.940,00. Los apartamentos cuentan con acabados y piezas de primera, pisos de mármol, porcelanatos en habitaciones y baños, puertas macizas de madera, ventanas y puertas de aluminio esmaltado en exteriores. No incluye muebles ni equipos de cocina, fotos referenciales. El conjunto tiene piscina, gimnasio, salones de fiesta, amplia áreas verdes con caminerías. Planta eléctrica por cada torre, 2 pozos de agua. Ubicado cerca de "todo", pero aislado en calle privada, con doble control de acceso, además de garitas individuales por torre. |
![]()
Ciudad:
Caracas
|
| Más Información: (0412) 986-3754 - (0414) 311-6277 | |
.jpg)
.jpg)
.jpg)
.jpg)
.jpg)
.jpg)
.jpg)
.jpg)
.jpg)
.jpg)
.jpg)
-Apaisada.jpg)
.jpg)
.jpg)
.jpg)
.jpg)
.jpg)
Apartamento 562 m2

Apartamento 367 m2