| Desarrollos Inmobiliarios TEN, C.A. |
| Promotores y Asesores Inmobiliarios |
| Inicio | Somos | Servicios | Trayectoria | Contacto | Promos |
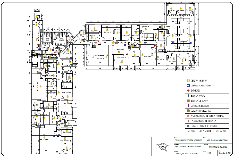
| Venta - Oficina - La Castellana, Torre IASA | |
El inmueble está conformado catastralmente por 7 oficinas integradas. Se vende junto con el mobiliario y equipamiento existente. Edificio impecablemente mantenido, con facilidades y servicios de todo tipo aledaños. Ubicada en una de las mejores zonas empresariales de la ciudad.Ver Plano |
|
| Información: (0412) 986-3754 - (0414) 311-6277 | |
.jpeg)
.jpeg)
.jpeg)
.jpeg)
.jpeg)
.jpeg)
.jpeg)